前沿拓展:女性职场服装设计图纸
其实现在大多数都是穿职业套装,想穿得有气质,其实只要选一套适合自己的套装就可以了,副振占宣每件衣服都有自己的风格,我们选衣服的时候要按照自己的风格,自己的肤色等等去选,这样就算是职业套装都可以让你穿出自己的气质来。
前两天社群中有小伙伴疯狂吐槽,说自己刚参加工作没一个月,设计总监问他会不会画施工图,他想不就是拿CAD画平面、画立面嘛,不难呀~就勇敢的答应下来。
结果熬了几个大夜画完,迈着快乐的小步伐给总监看时,总监看完图后意味深长的看着他,说:真的拴Q,你这画的是什么玩意?没画过施工图?
图纸不标准,图纸目录的编排、涂层线形、占比也不对,平面图系统软件缺乏综合性天花吊顶排列,剖建筑立面缺乏混凝土楼板和装饰设计面进行线,并且基本上的构造造型设计画的也不对,大样图也没有.......
然后他就蒙圈了,瞬间自闭了!!

施工图纸那么繁杂的吗?要求这么多的吗???
那施工图纸究竟怎么学啊???
1、完整的施工图设计制图标准
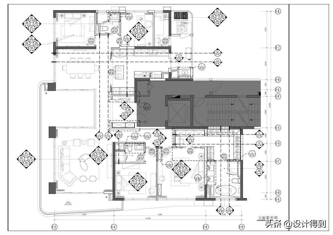
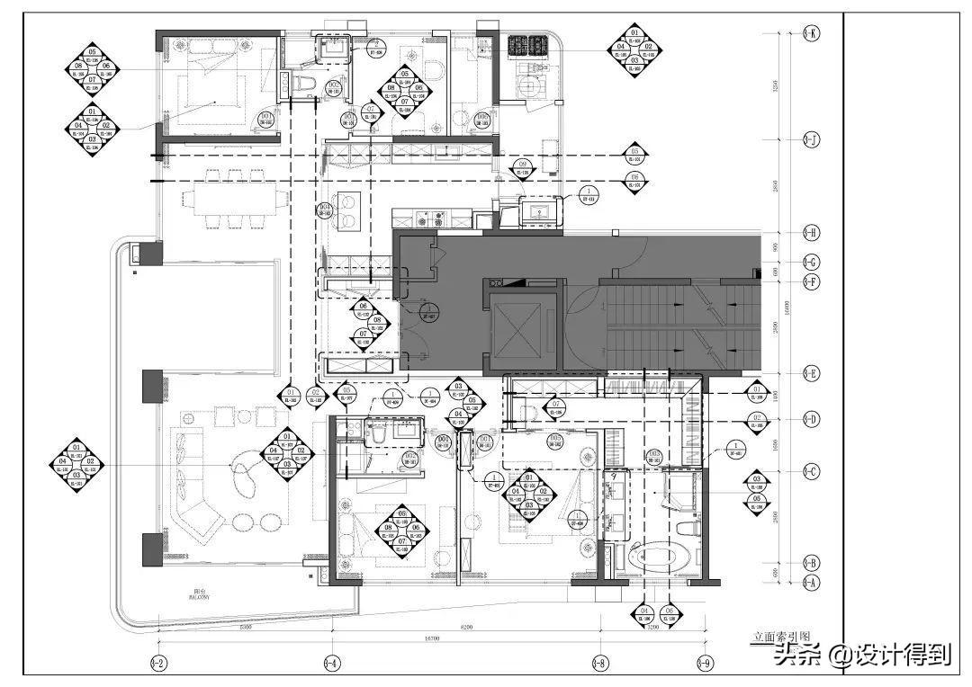
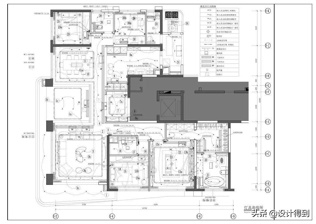
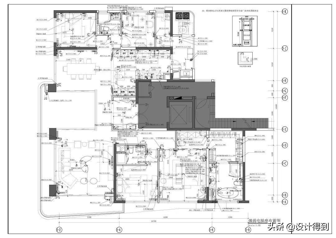
施工图设计是方案设计对于现场情况的表达,把方案转化成可以落地的项目,意义在于指导施工。施工图在设计产业中负责提供技术支撑,强调客观严谨,需要经验累积和归纳总结,看似简单的施工图实则意义重大。
一份画得好的施工图,应该同时做好两个方面:第一是设计;第二是表达,是对于工作中踩过的坑的总结汇总,不仅仅是为了同一个团队出图的一致性,更重要的是它可以帮没有自己成熟工作体系的设计师,去高率系统性的建立一套制图方法,而不是靠自己踩坑摸索。

再好的方案、再惊艳的设计,如果不能落地,它也仅仅只是一个方案概念。所以,施工图设计的工作和制图标准的意义是十分严谨且重要的。
完整的施工图需要有深度,能够准确地表达出装修信息,指导施工。图纸的深度也不是越深越好,而是需要根据具体项目情况具体分析对待。
通常需要做到各区域细节用材明确、标准工艺做法确定,天地墙的做法确定,墙体完成面能够准确定位以及相关机电点位能够整合。





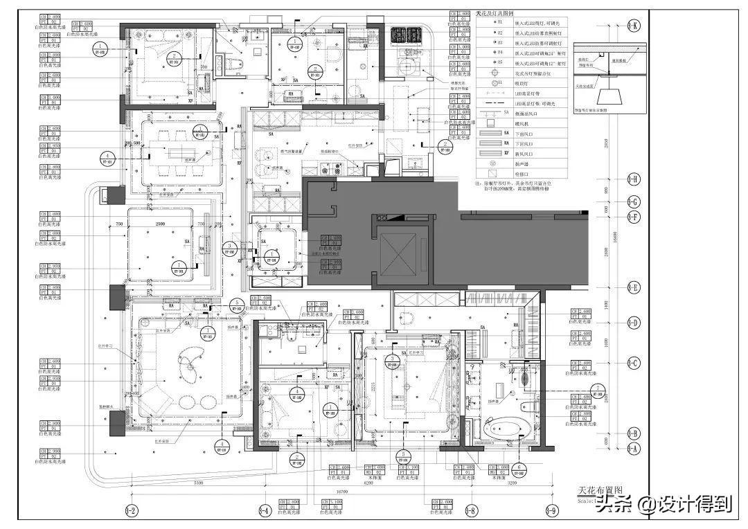
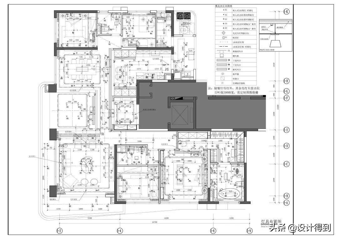
2、完整的施工图设计绘制流程
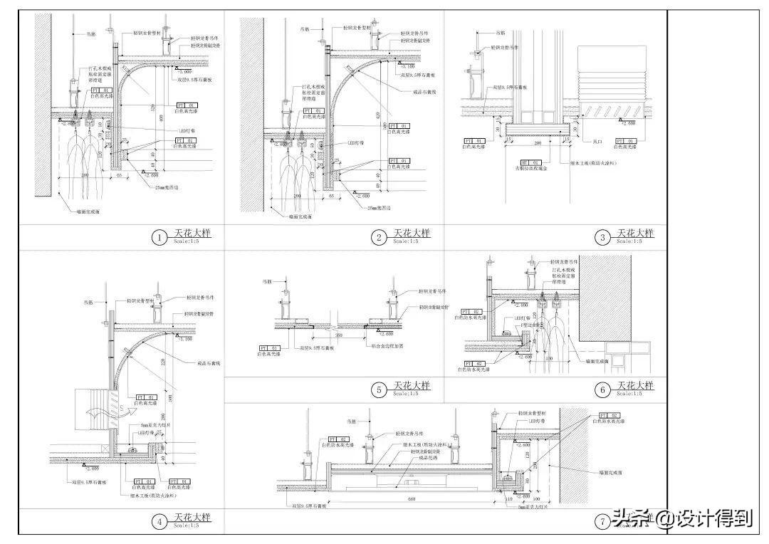
施工图的绘制看似容易,但也是容易出现问题的。比如图纸布局、比例大小、图纸图层设置、线型设置、尺寸标注等等。
1)图纸布局:
如今的行业中通用的都是布局出图,而布局出图,重要一环是图层的设置,图层设置有很多属性,除了图名外,还有颜色、线形、线宽等。这些设置都与图面绘制准确与否息息相关。
2)图纸图层:
图纸的图层设置又与打印样式设置紧密相关,每一个图层颜色设置都对应着相应的线宽设置和淡显设置。
3)尺寸标注:
图纸的尺寸标注同样不可或缺,尺寸标注关乎着施工图表达信息的准确度。尺寸标注和材料标注是施工图标注的重要组成,而标注样式是根据制图规范来制定的,不同的图幅,对于字高、大小、颜色也是不同的。



4)细节:
俗话说得好“细节决定成败”,一套完整的施工图除了必要的元素的表达,细节也影响着施工图的完整程度。比如,填充图案的样式大小、索引符号、剖切符号的大小和位置、标注位置、布局排图等都需要注意。
能够了解并掌握一套施工图的完整绘制流程,以及在此过程中对于方案思考逻辑的能力,对一名室内设计师有多么重要。




很多设计师容易犯的错误或者说是大的困扰,就是容易踩坑,市面上许多的涉及“施工图设计”的课程,大部分都是教你理论技巧或者是笼统的概念,很难运用到实际工作中去。只能学到皮肉,学不到骨骼,没有骨骼支撑,又怎么能成型呢?
室内设计师的职场发展黄金期并不长,与其浪费大量时间踩坑摸索,不如跟着高手,用小的成本获得大的成长,掌握一线设计公司的完整施工图绘制流程和制图思维。
拓展知识:女性职场服装设计图纸